2026年04月29日

星期三

展示中心
联系我们
江苏省钢铁行业协会
协会地址 : 南京市御道街58-2号 明御大厦703室
咨询热线 : 025-84490768、84487588
协会传真 : 025-84487588、84490768
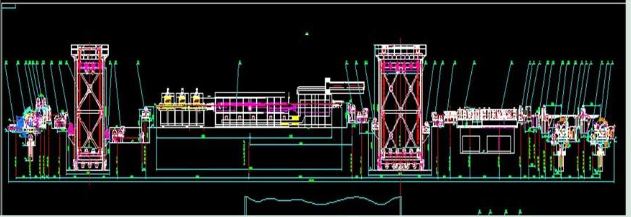
1450不锈钢退火生产机组

2024-12-18 13:43:39

浏览24

image.png

带钢厚度:0.20~1.2mm

带钢宽度:Max.1250mm

机组最大速度:40m/min

穿带速度:20m/min