对烧结成品系统电液推杆插板阀的运行情况进行现场勘查,烧结成品矿料流动状态下,料库电压推杆插板阀关不严而造成漏料,漏料长时间堆积后,将料库下层皮带压死。岗位人员为满足生产工艺流程切换倒用皮带的过程中,在现场反复操作控制箱开关按钮,才能将电液插板阀关严。因频繁反复关开阀门操作,造成阀门电机过载烧损,也很大程度上增加了岗位人员的劳动强度。针对烧结成品系统电液推杆插板阀无法一次关严的难题,利用精益管理思想提出切实可行的解决方案。再进一步探究解决流动矿料料库电液插板阀技术改造,以便用实施更加精简的技术改造,达到百分之百一次关严流动矿料料库电液插板阀的目的,最终实现烧结成品系统无人值守。
1 概述
首钢京唐钢铁联合有限责任公司炼铁作业部烧结作业区配有两台500㎡烧结机,烧结成品筛分系统共有主要电液推杆插板阀22个。烧2皮带和烧4皮带对应四个系列筛子电液推杆插板阀4个,铺底料系统电液推杆插板阀10个,大小成品4条皮带对3条向高炉成品输送皮带电液推杆插板阀8个,由于生产工艺流程要求,倒皮带切换频次高,间隔时间短,且所有电液推杆插板阀切换都是在大小块成品烧结矿料流动状态下进行的。在流动矿料下关闭插板阀,经常造成插板阀关不严,限位开关不到位,卡料等故障发生。这时就需要生产岗位人员在操作箱上操作开关阀按钮,反复开、关直至将插板阀关严为止。不然会造成皮带连锁停机,插板阀漏料堆积压死下层皮带等故障,给生产组织带来很大困难,同时也浪费大量的劳动力。本文针对这个问题进行了详细分析并提出解决方案,并收到明显改善效果。 2 流动矿料料库电液推杆插板阀关不严故障分析及解决方案 2.1 状况 在矿料流动过程中,插板阀进行关阀动作,在阀板走动中伸进阀内的阀板就接到流动的矿料,并随着阀板前行,落在阀板上的积料不断增加,阀板将近接触到终点位置时,不仅有下行的矿料,还有阀板下流的矿料都集聚在阀板和终点的小缝隙,极有可能造成块料挤压在阀板和终点之间,造成阀体不能触及关限位而关严,关闭极限不能反馈关到位信号,插拔阀电机不能停止运行,且缝隙掉料,在下层皮带集聚。造成皮带电机烧损或者下层皮带压料。 通过对插板阀关不严原因分析,为解决插板阀在将近关到位时流动矿料挤压的问题,想办法在插拔阀快关到位时,挡住流动矿料的下料,同时躲开插板阀上的堆积积料下流。这样插板阀就很容易关严。采取上下阀循环相向运行,操作上阀先关,关至距离终点20CM时停止;下阀开始关闭,直至关严为止。打开是下阀先打开直至全开位置,上阀再开直至全开位置。通过增加一个插板阀的措施解决流动矿料插板阀关不严的故障。 2.2 对于流动矿料料库较短(L<1.1m)三通料库电液推杆插板阀的改造方案探究 根据双阀相向循坏运行思路,通过重新设计电气控制来实现关严插板阀的目的。 2.2.1 原单电液推杆插板阀(如图1)、电气主电路图(如图2)及控制原理图(如图3)

图1 单电液插板阀
①液压缸 ②油缸支座 ③油缸 ④闸门壳体 ⑤闸板 ⑥力臂

图2 单电液插板阀主电路图

图3 单电液插板阀控制原理图
电机智能保护器(100-DNY42R)OUTA发出插板阀开信号,插板阀开KMF1闭合,插板阀反向运行,插板阀打开直至触到插板阀开到位限位开关SQF1,插板阀停止,插板阀开动作完成。电机智能保护器(100-DNY42R)OUTB发出插板阀关信号,插板阀关KMR1闭合,插板阀正向运行,插板阀关闭直至触到插板阀关到位限位开关SQR1,插板阀停止,插板阀关动作完成。
2.2.2 双阀相向循环运行电液推杆插板阀(如图4)、电气主电路图(如图5)及控制原理图(如图6)
电机智能保护器(100-DNY42R)OUTA发出插板阀开信号,首先下插板阀开KMF2接触器闭合,下插板阀反向运行,下插板阀打开直至触到下插板阀开到位限位开关SQF2,下插板阀停止,下插板阀开动作完成。下插板阀开到位限位开关SQF2常闭点打开,同时常开点闭合,上插板阀开KMF1接触器闭合,上插板阀反向运行,上插板阀打开直至触到上插板阀开到位限位开关SQF1,下插板阀停止,上插板阀开动作完成。电机智能保护器(100-DNY42R)OUTB发出插板阀关信号,上插板阀关KMR1接触器闭合,上插板阀正向运行,上插板阀关闭直至触到上插板阀关到位(上阀关到位位置设定在上阀阀板距离终点20CM处)限位开关SQR1,上插板阀停止,上插板阀关动作完成。上插板阀关到位限位开关SQR1常闭点打开,同时常开点闭合,下插板阀关控制回路接通,下插板阀关KMR2接触器闭合,下插板阀正向运行,下插板阀关闭直至触到下插板阀关到位(下阀关到位位置设定在下阀阀板关严处)限位开关SQR2,下插板阀停止,下插板阀关动作完成。

图4 L<1.1m双电液插板阀

图5 L<1.1m双电液插板阀主电路图

图6 L<1.1m双电液插板阀控制原理图
对以上方案的自行设计和现场改造实施,并通过一段时间的验证收到了预期的效果。此方案非常适用于流动矿料较短三通料库电液推杆插板阀的改造。
3 对于流动矿料料库较长(L>1.1m)三通料库电液推杆插板阀的改造方案探究
3.1 取消电液插板阀,安装电液摆筒三通阀(图7),维持原单阀电气控制系统不变
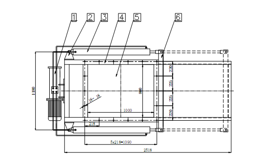
如果三通料库的长度大于料库短边距离加300MM,达到电液摆动三通阀运转距离,就可以适用。
电液摆筒三通阀立体阀打开时,电液推杆打开,向外推动阀体以原点为支撑点,做圆周运动,直至触到开阀限位开关为止,阀体停止运行;
电液摆筒三通阀立体阀关闭时,电液推杆回缩,向内拉动阀体以原点为支撑点,做圆周运动,直至触到关阀限位卡关为止,阀体停止运行;
由于阀体在做圆周运动,流动矿料沿着阀体上圆弧滑落,并沿着阀体内测和料库内壁流下。在阀体关闭瞬间,由于阀体做圆周运动与料库内壁线接触,不会造成因卡料而使阀体关闭不严的现象发生。

图7 L>1.1m电液摆筒三通阀
4 结论
通过对流动矿料料库电液插板阀技术改造,一是对料库比较短,改造空间比较小(L<1.1m)的电液插板阀,将原来单电液插板阀改造成双电液插板阀,双电液插板阀相向循环动作,解决下阀关阀时流动矿料挤压在阀板和料库内壁之间,造成插板阀关不严的问题。二是对于对料库比较长,改造空间比较大(L>1.1m)的电液插板阀,将电液插板阀改造成电液摆筒三通阀,利用电液摆筒三通阀圆周运动,解决阀体在关闭瞬间因流动矿料挤压在阀体与料库内壁之间,造成插板阀关不严的问题。从而很大程度上降低生产岗位人员的劳动强度,解放生产力,提高劳动效率。
